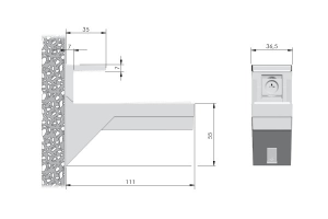
Držák U18 lesk
Držák U18 lesk
skladem
Cena včetně DPH: 785,00 Kč
Cena bez DPH: 648,70 Kčpro sílu skla 8, 10, 12, 15 a 19 mm montážní návod
